The Ariane Immobilier team offers for sale a commercial space for professional use, offering numerous possibilities for operation.
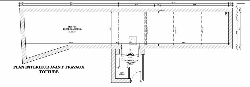
This property, formerly used as a carpentry workshop, offers approximately 38 m² of floor space. It boasts generous proportions with ceiling heights ranging from 3.24 m at the lowest point to 4.18 m at the highest, allowing for various layouts to suit your business. A skylight provides ample natural light, a real asset for a pleasant workspace.
The premises require complete renovation, offering the opportunity to completely redesign the space according to your needs (office, workshop, professional activity, etc.).
Thanks to its configuration and potential, this property represents an interesting opportunity for any professional looking for a space to be fitted out to their specifications.
For further information or to arrange a visit, please contact Mr. Giron at 06 16 38 49 58